213461 Baseline Rd. R. R. #1 Hanover, ON
519-369-7450
< Back
Main picture of 665 WATSON STREET
Secondary picture of 665 WATSON STREET
Third picture of 665 WATSON STREET

+18

665 WATSON STREET

South Bruce Peninsula, Ontario

$299,000.00

  Mortgage Info

0
0
50.16 x 203.94 FT

About This Property:


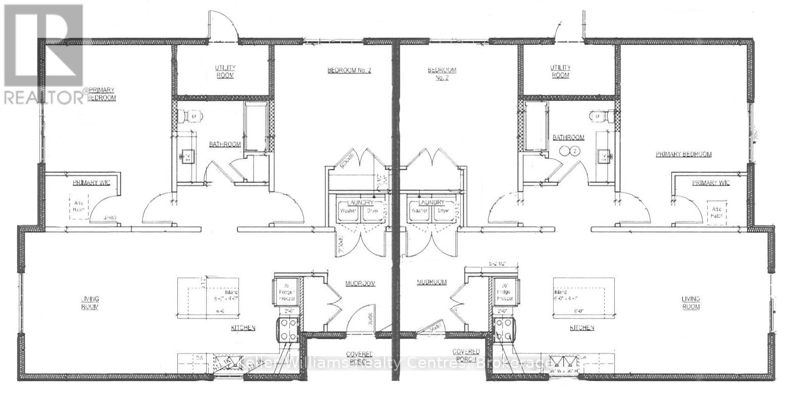
Your next investment is already underway with this vacant lot in Wiarton, where permits, studies, and grading plans are approved and in place for a duplex build. This rare turnkey development site with trusses on site and foundation prepped ready for concrete presents an excellent opportunity for builders, investors, or owner-occupiers seeking a streamlined path to construction. With key approvals already secured, you can move forward without the usual delays. For added flexibility, the sellers are open to building, offering a convenient start-to-finish option. Set in a family-friendly neighbourhood, the property has an existing shed and is located near schools and parks, making it ideal for long-term tenants or families looking for quality housing. You'll also enjoy close proximity to downtown Wiarton for everyday amenities and just a short drive to Sauble Beach, adding lifestyle appeal for future occupants. Whether you're building to invest, rent, or live, 665 Watson Street offers a rare chance to secure a ready-to-go duplex site in a growing Bruce Peninsula community. Take advantage of this turnkey opportunity-contact us today to explore the potential of this Wiarton build lot.

Listing Info:

Price:
$299,000.00
Property Type:
Vacant Land
Stories:
1
Bedrooms:
0
Bathrooms:
0
Partial Bathrooms:
0
Lot Size:
50.16 x 203.94 FT
Status:
For sale

Location:

Address: 665 WATSON STREET, South Bruce Peninsula, Ontario, N0H2T0


Realtor

Get in Touch

Richard Graham

Sales Representative

Looking to buy Real Estate in Hanover or sell your Hanover property? Richard Graham can help.

Coldwell Banker Peter Benninger Realty

 

Address

Office
120 Jackson St S
Walkerton, ON
N0G 2V0

Personal
213461 Baseline Rd.
R. R. #1 Hanover, ON
N4N 3B8

Contact

Office: 519 881-2551
Cellular: 519 369-7450
richard@hanoverrealestate.ca

 

Please enter your name.
Please enter a valid email address.
Please enter your phone number.
Please enter a message.

MENU